- Woonoppervlakte
- Circa 138 m²
- Perceeloppervlakte
- Circa 500 m²
- Bouwjaar
- Gebouwd in 1941
- Aantal kamers
- 5 kamers (4 slaapkamers)
Ruime 2-onder-1-kapwoning met tuin op het zuiden in Castenray
Aan de Horsterweg 28 in Castenray staat deze goed onderhouden 2-onder-1-kapwoning op een ruim perceel van 500 m². De woning, gebouwd in 1941, is door de jaren heen gemoderniseerd en biedt een comfortabele woonruimte met veel privacy.
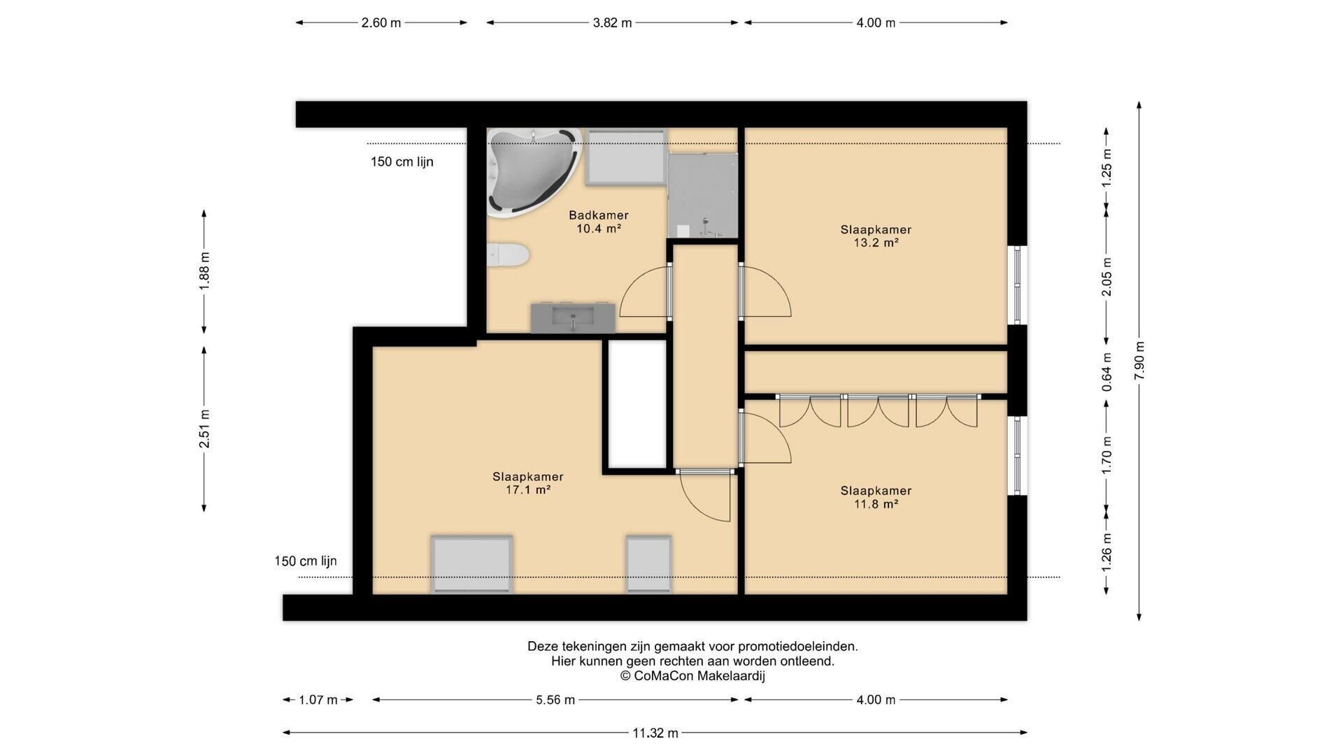
Met een woonoppervlakte van 138 m² beschikt de woning over een lichte woonkamer, een moderne keuken met eiland en vier slaapkamers. De keuken, circa acht jaar oud, is voorzien van diverse inbouwapparatuur en een osmosefilter. De bijkeuken biedt extra opbergruimte en heeft een apart toilet. De badkamer is in 2023 deels vernieuwd en uitgerust met een douche, ligbad, wastafelmeubel en toilet.
De woning heeft kunststof kozijnen met HR++ en deels triple beglazing, wat bijdraagt aan een goede isolatie. Daarnaast zijn er (grotendeels) elektrisch bedienbare rolluiken en plissés aanwezig. Verwarming vindt veelal plaats met een houtkachel die achterblijft. Daarnaast is er een cv-installatie met een combiketel uit ca. 2017 en vloerverwarming in de bijkeuken en het toilet. In de kelder is een waterfilterinstallatie geplaatst.
De royale tuin op het zuiden met een vrije achterom biedt veel privacy. Verder is er een tuinhuisje van 10 m² en een ruime oprit geschikt voor drie auto’s. Een grote bergzolder, bereikbaar via een vlizotrap, zorgt voor extra opbergmogelijkheden.
De woning heeft energielabel C en is grotendeels opnieuw gestukadoord en goed geïsoleerd. Met deze kenmerken is het een ideale woning voor starters die op zoek zijn naar een ruim huis met moderne voorzieningen en een rustige ligging.
Vraagprijs: € 440.000 k.k.
Interesse? Neem contact op voor een bezichtiging.
CASTENRAY
Direct ten oosten van de dorpskern ligt de A73. Ten zuidwesten van Castenray ligt het 70 hectare grote natuurgebied Castenrayse Vennen rond het dal van de Lollebeek. Aan de westkant van Castenray ligt tegen de dorpsgrens de 'Castenrayse Berg'. Dit is een bosgebied met stuifduinen. Ook ligt daar het waterwingebied Breehei. De Lollebeek ontspringt aan de zuidwestkant van Castenray en mondt aan de zuidoostkant uit in de Groote Molenbeek. Bij de Castenrayseweg begint aan de oostkant van de A73 een mooie wandelroute die langs de meanderende Lollebeek en een waterplas van De Diepeling naar de Groote Molenbeek voert.
De woning ligt aan de doorgaande weg van Horst naar Venray. Een basisschool is aanwezig in het dorp. Voortgezet onderwijs, speciaal onderwijs, sport, cultuur, winkels en horeca zijn in het nabij gelegen Horst en Venray goed vertegenwoordigd en maken het wonen op deze plek aantrekkelijk voor jong en oud. Er is een buslijn aanwezig en via het treinstation Venray-Oostrum zijn Venlo en Nijmegen goed bereikbaar.
BIJZONDERHEDEN / KENMERKEN
• vraagprijs € 440.000
• bouwjaar 1941
• woningtype: 2-onder-1-kapwoning met veel privacy
• 4 slaapkamers, badkamer met douche, ligbad, wastafelmeubel en toilet
• bijkeuken met toilet
• kunststofkozijnen met HR++ en deels triple beglazing
• perceel 500 m2
• woonoppervlakte 138 m2
• overige inpandige ruimte 28 m2
• gebouwgebonden buitenruimte 17 m2
• externe berging 10 m2
• tuin op het zuiden met vrije achterom en veel privacy
• energielabel C
• CV-ketel uit ca. 2017
• oprit voor 3 auto’s
De informatie in deze publicatie is met de nodige zorgvuldigheid samengesteld.
Wij aanvaarden geen aansprakelijkheid voor eventuele onvolledigheid, onjuistheid of anderszins en de daaraan gelieerde gevolgen.
De tekeningen met vermelde afmetingen zijn gemaakt voor promotiedoeleinden.
Hier kunnen geen rechten aan ontleend worden. Lees de volledige omschrijving
Overdracht
- Vraagprijs
- € 440.000 k.k.
- Status
- Verkocht onder voorbehoud
- Aanvaarding
- In overleg
Bouw
- Object type
- Eengezinswoning, 2-onder-1-kapwoning
- Soort bouw
- Bestaande bouw
- Bouwjaar
- 1941
- Soort dak
- Zadeldak bedekt met pannen
Oppervlakte en inhoud
- Woonoppervlakte
- 138 m²
- Perceeloppervlakte
- 500 m²
- Inhoud
- 566 m³
- Externe bergruimte
- 10 m²
- Gebouwgeb. buitenruimte
- 17 m²
Indeling
- Aantal kamers
- 5 kamers (4 slaapkamers)
- Aantal badkamers
- 1 badkamer en 1 apart toilet
- Badkamervoorzieningen
- Douche, ligbad, en wastafelmeubel
- Aantal woonlagen
- 2 woonlagen, een zolder, en een kelder
- Voorzieningen
- Dakraam, glasvezelkabel, natuurlijke ventilatie, rolluiken, en TV kabel
Energie
- Energielabel
- C
- Energielabel registratie
- 16-10-2022
- Isolatie
- Dakisolatie, driedubbel glas, hr-glas en muurisolatie
- Verwarming
- Cv-ketel en houtkachel
- Warm water
- Cv-ketel
- Cv ketel
- Nefit (gas gestookt combiketel uit 2017, eigendom)
Buitenruimte
- Ligging
- Buiten bebouwde kom en landelijk gelegen
- Tuin
- Achtertuin
- Afmetingen achtertuin
- 210 m² (30,00 meter diep en 7,00 meter breed)
- ligging tuin
- Gelegen op het zuiden bereikbaar via achterom
Bergruimte
- Schuur / berging
- Vrijstaande houten berging
- Voorzieningen
- Elektra en stromend water
Indicatie hypotheeklasten
Eigen inleg:
Spaargeld / overwaarde
Rente:
Laagste 10-jaars rente
Laagste 10-jaars rente
2,75% - Centraal Beheer Groen... - NHG
3,05% - Centraal Beheer Groen... - 80%
Laagste 20-jaars rente
3,23% - Argenta Groen Hypothee... - NHG
3,44% - Argenta Groen Hypothee... - 80%
Laagste 30-jaars rente
3,4% - Argenta Groen Hypotheek... - NHG
3,61% - Argenta Groen Hypothee... - 80%
Hypotheek:
Bruto maandlasten: € 0 p/m
Netto maandlasten: € 0 p/m
Hoe berekenen we dit?
Het rentepercentage is gebaseerd op de laagste 10-jaars vaste rente voor één hypotheekdeel. De vermelde rente (3.05% zonder NHG) is gecontroleerd op 22-10-2025. Deze berekening is gebaseerd op een annuïteitenhypotheek die volledig wordt afgelost, waarbij de maandlasten gedurende de gehele looptijd gelijk blijven. De werkelijke rente en netto maandlasten kunnen variëren, afhankelijk van uw persoonlijke situatie en de hypotheekverstrekker. Raadpleeg een financieel adviseur voor een nauwkeurige berekening en advies. Aan deze berekening kunnen geen rechten worden ontleend; het dient enkel als indicatie.
Documentatie
Kadastrale kaart
Leefomgeving
Brochure
WOZ waarderapport
Plattegronden PDF
BAG uittreksel
Eigendomsinformatie-venray-p-693-bew
Kadastrale-kaart-venray-p-694
Bezichtiging
Waardebepaling
Zoekopdracht
Alles downloaden
Zonnegrenzen bekijken
Op de kaart
Inwoners in Castenray
Cijfers voor postcodegebied 5811
- Totaal aantal inwoners
- 815 inwoners
- Mannen
- 53%
- Vrouwen
- 47%
Inwoners in Castenray
Cijfers voor postcodegebied 5811
- tot 15 jaar
- 15%
- 15 tot 25 jaar
- 13%
- 25 tot 35 jaar
- 21%
- 45 tot 65 jaar
- 31%
- 65 en ouder
- 20%
Huishoudens in Castenray
Cijfers voor postcodegebied 5811
- Eenpersoons zonder kinderen
- 30%
- Meerpersoons zonder kinderen
- 31%
- Huishoudens zonder kinderen
- 61%
Huishoudens in Castenray
Cijfers voor postcodegebied 5811
- Huishoudens met één kind
- 4%
- Huishoudens met meerdere kinderen
- 34%
- Huishoudens met kinderen
- 38%
Woningen in Castenray
Cijfers voor postcodegebied 5811
- Woningen voor 1945
- 23%
- Woningen tussen 1945 en 1965
- 17%
- Woningen tussen 1965 en 1975
- 14%
- Woningen tussen 1975 en 1985
- 23%
- Woningen tussen 1985 en 1995
- 8%
Woningen in Castenray
Cijfers voor postcodegebied 5811
- Woningen tussen 1995 en 2005
- 5%
- Woningen tussen 2005 en 2015
- 5%
- Woningen na 2015
- 6%
- Huurwoningen
- 20%
- Koopwoningen
- 80%
Overige in Castenray
Cijfers voor postcodegebied 5811
- Gemiddelde WOZ waarde
- € 270.000,-
- Personen onder de 65 met uitkering
- Niet beschikbaar
Overige in Castenray
Cijfers voor postcodegebied 5811
- Adressen per km²
- 67
- Stedelijkheid (schaal 1 op 5)
- 20%
Korte feiten over Castenray
Castenray (Limburgs: Kâssele) is een kerkdorp in de gemeente Venray met 830 inwoners (1 januari 2023) en een oppervlakte van 950 hectare.
CoMaCon Makelaardij
Indien u vragen heeft of u wilt een bezichtiging inplannen, dan kunt u gebruik maken van het formulier hiernaast. Er zal daarna op korte termijn contact met u worden opgenomen.
Contact opnemen
Comacon Makelaardij
Bij Comacon Makelaardij krijgt u meer dan alleen een makelaar. Dankzij onze unieke combinatie van vastgoedervaring en bouwkundige achtergrond, bieden wij een totaalpakket dat verder gaat dan de standaard dienstverlening.
Wat ons onderscheidt:
Waardebepaling zonder kosten
We starten met een gratis inschatting van de waarde van uw woning – zonder verplichtingen.
Persoonlijke benadering en rust in het proces
Uw wensen staan centraal. We nemen uitgebreid de tijd om uw situatie te begrijpen en begeleiden u op een ontspannen manier.
Strategisch aan- en verkoopplan
Geen standaard aanpak, maar een zorgvuldig op maat gemaakte strategie om het maximale uit uw transactie te halen.
Eerlijkheid als kernwaarde
Wij werken transparant en hechten sterk aan betrouwbaarheid en ethisch handelen.
Kennis van zaken
U kunt rekenen op professionele begeleiding van een ervaren expert die met u meedenkt.
Gedetailleerde werkwijze
Onze processen zijn verfijnd tot in de kleinste details, zodat u profiteert van een gestroomlijnde afhandeling.
Zorg voor de koper
Wij vinden het belangrijk dat ook de koper goed wordt begeleid, zodat de gehele transactie soepel en verantwoord verloopt.
Grondige bezichtigingen
Onze rondleidingen zijn helder, informatief en afgestemd op de behoeften van potentiële kopers.
Passende courtage
Onze tarieven worden afgestemd op het object, zodat u een eerlijke prijs betaalt voor onze dienstverlening.
Opstartkosten
Naast de courtage rekenen wij opstartkosten voor de voorbereidingen en presentatie van uw woning.
Aankoopbegeleiding cadeau bij verkoopopdracht
Geeft u ons het vertrouwen voor de verkoop? Dan helpen wij u kosteloos bij het kopen van een nieuwe woning.
Ontdek het verschil van Comacon Makelaardij
Wij zetten ons volledig in voor het beste resultaat bij uw aan- of verkoop. Neem vrijblijvend contact met ons op en ervaar zelf onze betrokken en professionele aanpak.
Uw succes is ons uitgangspunt.
Nieuwste reviews
-
Turfstrooisel 6
Het was erg fijn samen te werken met Theo Cox. Een deskundige, kritische en vriendelijke makelaar die garant staat voor service voor alle pa...
-
Mgr Aertsstraat 25
In het begin viel de serieuze interesse tegen. Maar ja, je hebt gewoon de juiste koper nodig die door sommige dingen heen kan kijken! Het is...
-
Peter vdh
Soms moet je wat geduld hebben om tot de juiste koper te geraken. Een goede begeleiding is hier belangrijk. Nu genieten van een kleinere wo...